СТАДИЯ СТРОИТЕЛЬСТВА: черновая коробка из керамзитобетонных блоков
СРОКИ СТРОИТЕЛЬСТВА: 2 месяца
СТОИМОСТЬ: 373 руб. м2 под ключ с материалами
ХАРАКТЕРИСТИКИ
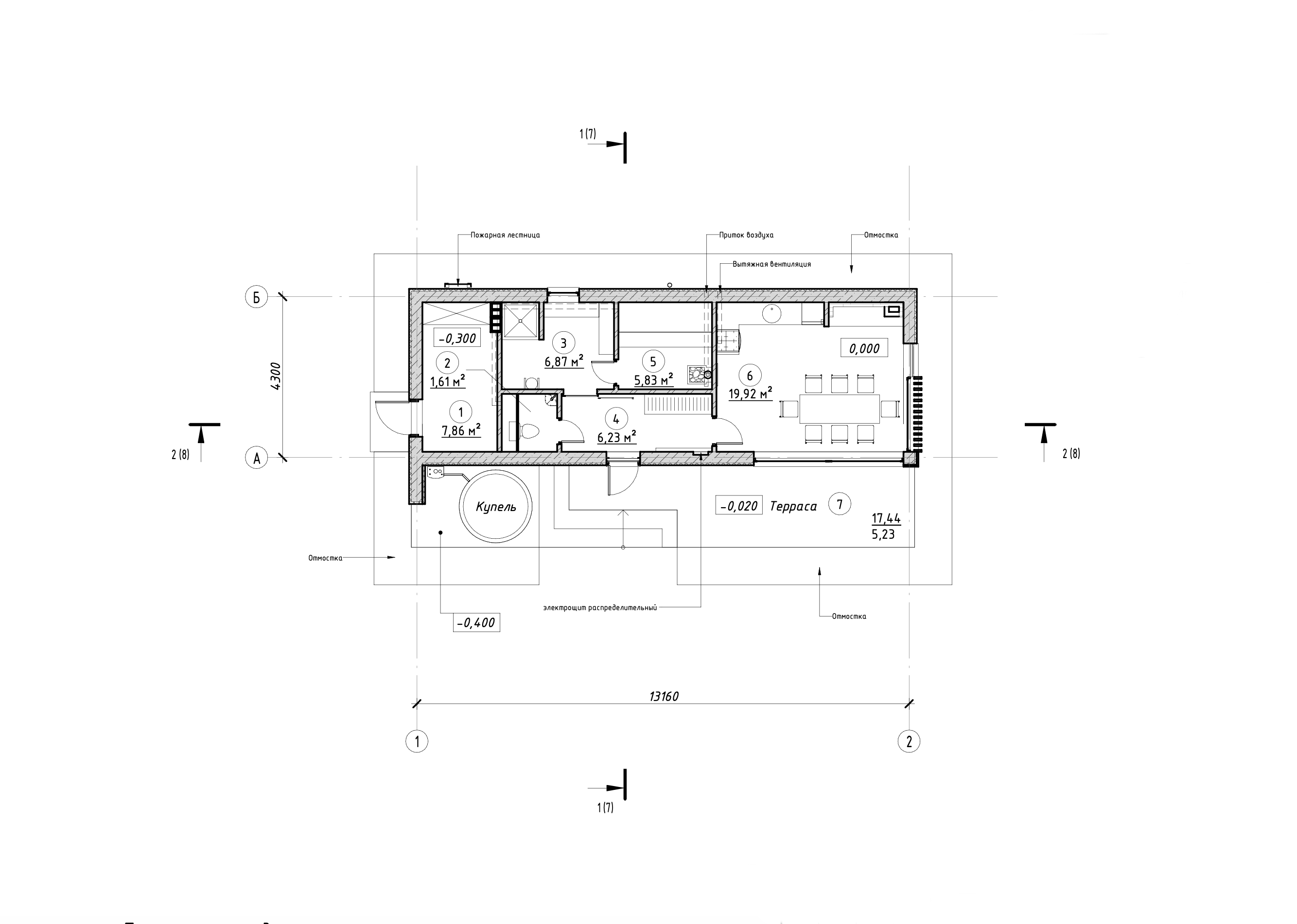
Общая площадь
53,55 м2
Количество этажей
1
Фундамент
Свайно-ростверковый
Наружные стены
Керамзитобетонный блок
Покрытие
Монолитная плита
ЭТАПЫ РАБОТ: земляные работы и устройство свайно-ростверкового фундамента, черновой пол, заливка террасы из бетона, возведение стен, межкомнатных перегородок и парапетов, монтаж кровли монолитными плитами с бетонированием колонны.
