СТАДИЯ СТРОИТЕЛЬСТВА: Проект
СТОИМОСТЬ: 386 руб. за м2
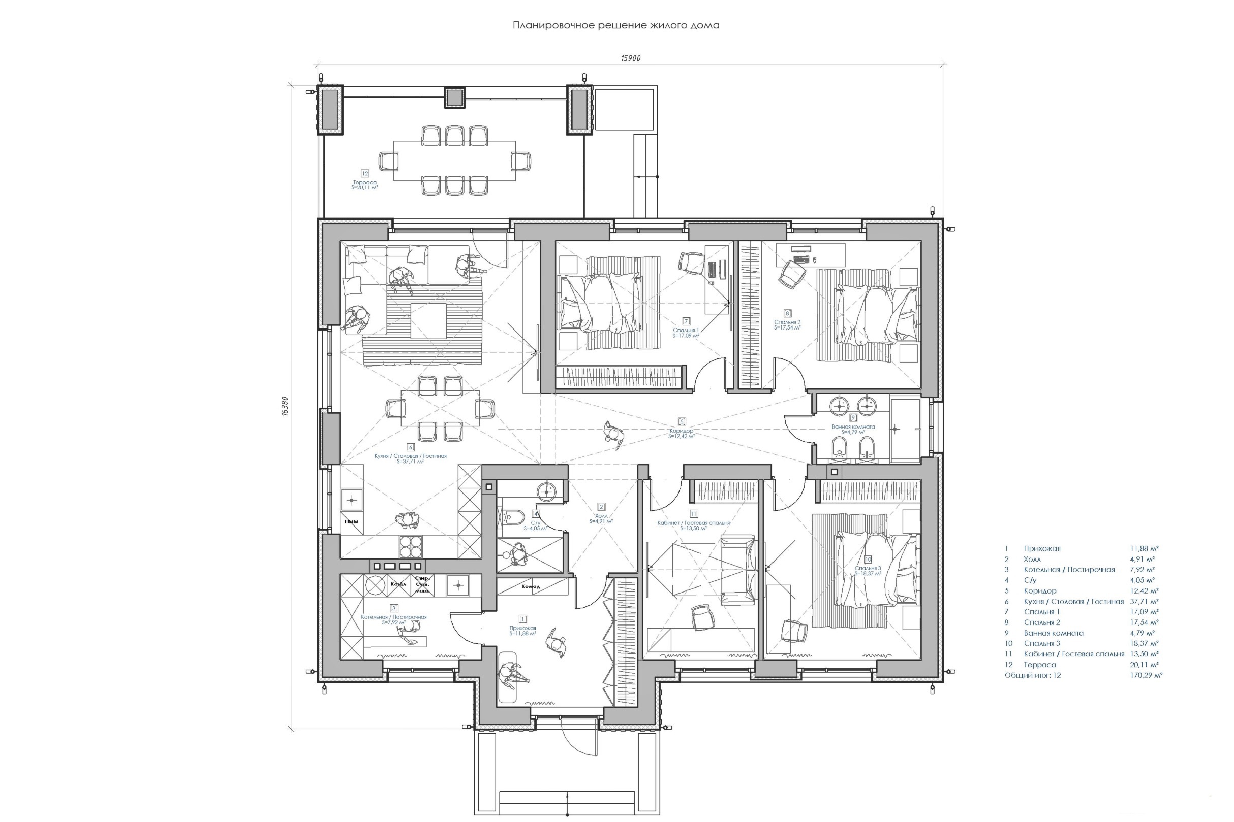
ХАРАКТЕРИСТИКИ
Общая площадь
170 м2
Рекомендуемый размер участка
от 10 соток
Количество этажей
1
Габариты (м)
15,90 × 16,38
Высота (м)
6,4
Материал стен
Керамзитобетонный блок «ТермоКомфорт»
Площадь кровли (м2)
303,63
Материал кровли
Модульная металлочерепица
ЭТАПЫ РАБОТ: дом, с жилой площадью 170 м2. Включает в себя уютную встроенную террасу. Дом облицован кирпичом с декоративными элементами объемной кладки и вставками из оштукатуренных поверхностей. Внешний вид фасада может быть индивидуализирован по желанию заказчика, что придаст зданию
уникальность.
Стоимость возведения коробки дома с материалами «под ключ»
| Состав работ | Работа | Материалы |
| Фундамент | 4456,89 | 4479,91 |
| Обр, засыпка | 1976,97 | 1251,57 |
| Канализация | 523,09 | 414,65 |
| Черновой пол | 2487,88 | 2418,37 |
| Кладка стен | 6593,68 | 6115,72 |
| Деревянное перекрытие | 2059,14 | 907,16 |
| Кровля | 6954,89 | 5989,68 |
| Фасад | 7684,27 | 4416,90 |
| Окна | 1005,40 | 5900,00 |
| Итого | 33742,21 | 31893,95 |
| Всего | 65636,16 | |
| руб. за м2 | 386,09 | |
Состав проекта:
- 3D визуализация.
- Поэтажные планы. Планы этажей с указанием всех площадей помещений.
- Схема фундамента.
- Кладочные планы этажей (с указанием всех размеров).
- Планы перекрытий этажей.
- Фасады дома. Фасады с высотными отметками, габаритными размерами, указанием отделочных материалов.
- Разрезы. Виды дома в разрезе, с указанием высот этажей, толщины перекрытий, высотных отметок, с указанием состава и описания строительных слоев.
- План-схема кровли. Вид на кровлю сверху с указанием углов наклона скатов.
