СТАДИЯ СТРОИТЕЛЬСТВА: черновая коробка дома из керамзитобетонных блоков
СРОКИ СТРОИТЕЛЬСТВА: 15 месяцев
СТОИМОСТЬ: 278 руб. м2 под ключ с материалами
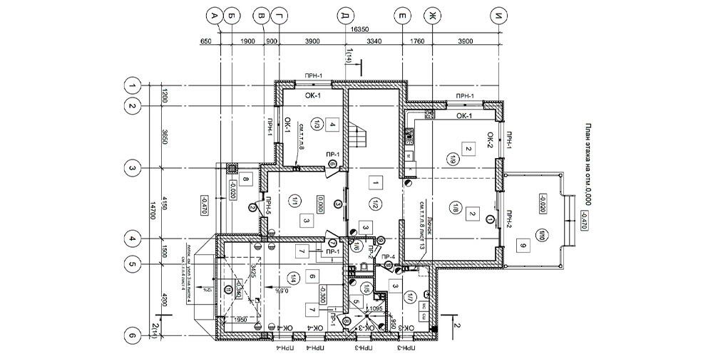
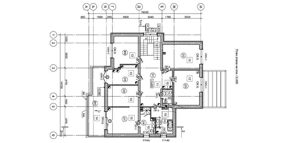
ХАРАКТЕРИСТИКИ
Общая площадь
337 м2
Количество этажей
2
Фундамент
ленточный
Наружные стены
керамзитобетонный блок
Перекрытия
сборное железобетонное
Кровля
модульная металлочерепица
ЭТАПЫ РАБОТ: земляные работы и устройство фундамента с утеплением и гидроизоляцией, черновой пол и канализация, заливка крылец из бетона, возведение стен и межкомнатных перегородок с армопоясами, перекрытие первого этажа ж/б плитами с бетонированием колонн, устройство кровли из модульной металлочерепицы, установка окон ПВХ
Двухуровневый дом для постоянного проживания. Представляет собой капитальное сооружение из блоков и бетона. Такой дом предусматривают для проживания семьи с детьми, где у каждого члена семьи будет своя комната, санузел и зона отдыха. Спа-зона не предусмотрена внутри данного дома, однако планировка включает в себя отапливаемый гараж на одно машиноместо, что порадует заказчиков в зимний период. При сочетании системы умного дома и правильном проектировании отопления, такой дом вполне может быть энергоэффективным несмотря на немаленькую площадь
