СТАДИЯ СТРОИТЕЛЬСТВА: Проект
СТОИМОСТЬ: 518 руб. за м2
ХАРАКТЕРИСТИКИ
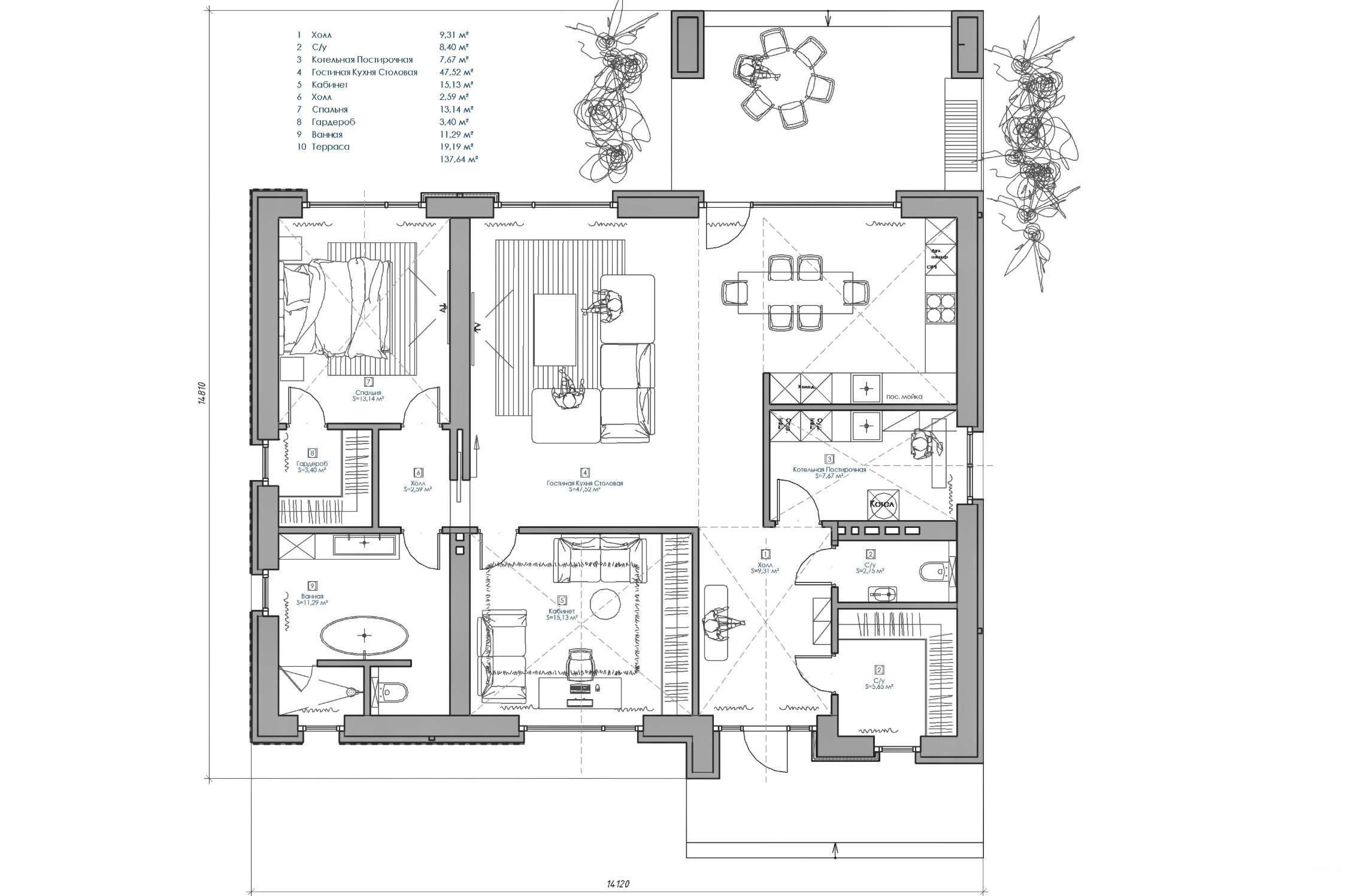
Общая площадь
137 м2
Рекомендуемый размер участка
от 10 соток
Количество этажей
1
Габариты (м)
14,81 × 14,12
Высота (м)
4,1
Материал стен
Керамзитобетонный блок «ТермоКомфорт»
Площадь кровли (м2)
165,5 м2
Материал кровли
Рулонный кровельный материал
ЭТАПЫ РАБОТ: дом, жилой площадью 137 м2, с крытой террасой, расположенный на одном уровне. Фасад здания состоит из кирпичной стены, дополненной элементами из древесины и керамогранита. По желанию заказчика фасад может быть выполнен из различных материалов.
Стоимость возведения коробки дома с материалами «под ключ»
| Состав работ | Работа | Материалы |
| Фундамент | 3825,34 | 3719,38 |
| Обр, засыпка | 1576,01 | 1031,08 |
| Канализация | 523,09 | 414,65 |
| Черновой пол | 2107,15 | 2246,74 |
| Кладка стен | 8196,58 | 6432,16 |
| Плита перекрытия | 4172,97 | 8032,23 |
| Кровля | 4598,92 | 4460,74 |
| Фасад | 7159,11 | 5531,07 |
| Окна | 1046,40 | 5900,00 |
| Итого | 33205,57 | 37768,06 |
| Всего | 70973,63 | |
| руб. за м2 | 518,05 | |
Состав проекта:
- 3D визуализация.
- Поэтажные планы. Планы этажей с указанием всех площадей помещений.
- Схема фундамента.
- Кладочные планы этажей (с указанием всех размеров).
- Планы перекрытий этажей.
- Фасады дома. Фасады с высотными отметками, габаритными размерами, указанием отделочных материалов.
- Разрезы. Виды дома в разрезе, с указанием высот этажей, толщины перекрытий, высотных отметок, с указанием состава и описания строительных слоев.
- План-схема кровли. Вид на кровлю сверху с указанием углов наклона скатов.
