СТАДИЯ СТРОИТЕЛЬСТВА: черновая коробка дома из керамзитобетонных блоков
СРОКИ СТРОИТЕЛЬСТВА: 4 месяца
СТОИМОСТЬ: 265 руб. м2 под ключ с материалами
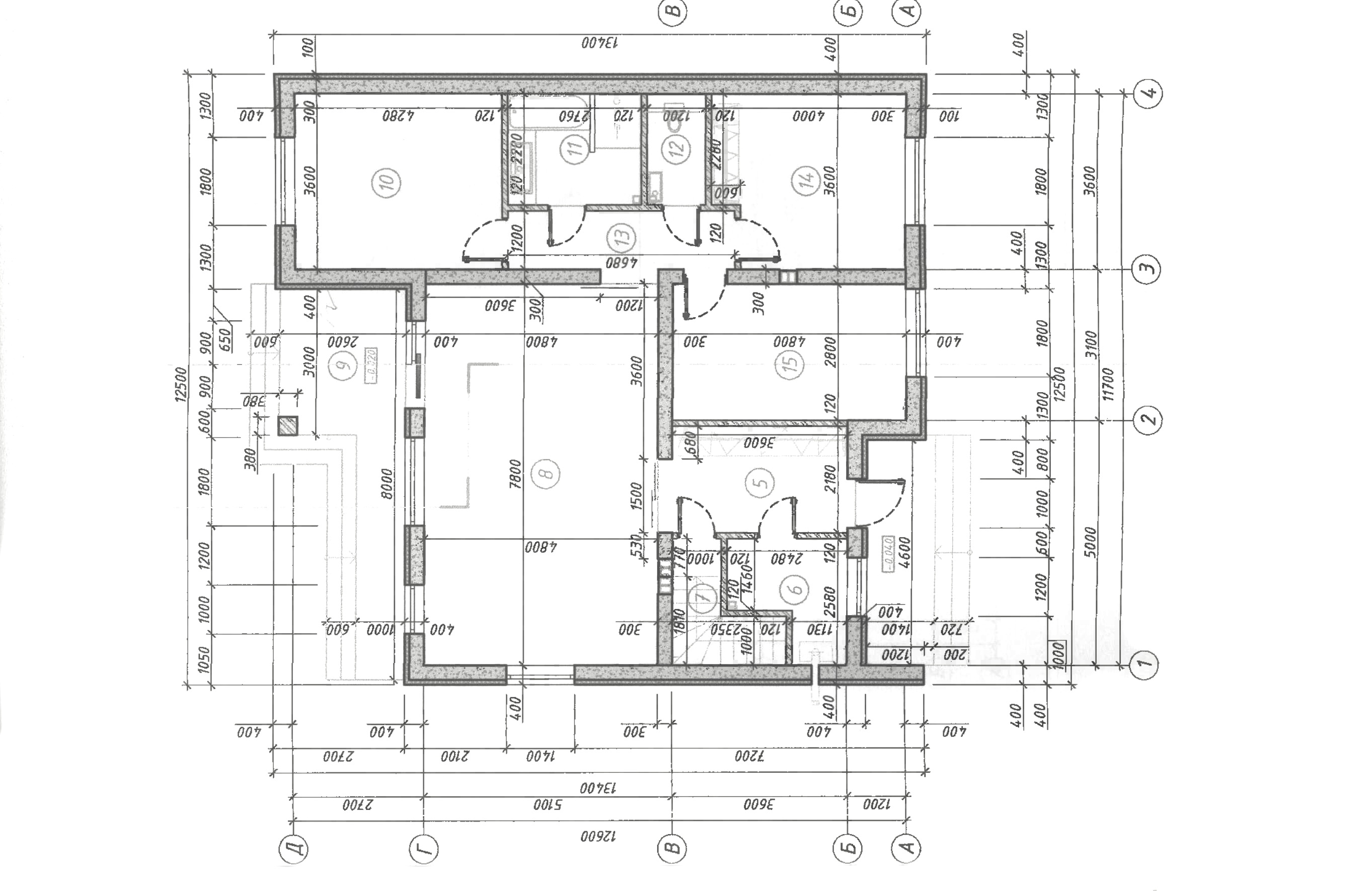
ХАРАКТЕРИСТИКИ
Общая площадь
114 м2
Количество этажей
1
Фундамент
свайно-ростверковый
Наружные стены
керамзитобетонный блок 300мм
Перекрытия
деревянные балки
Кровля
модульная металлочерепица
ЭТАПЫ РАБОТ: земляные работы, устройство фундамента с гидроизоляцией, возведение стен, возведение межкомнатных перегородок с армопоясами, кладка колонн, перекрытие первого этажа из деревянных балок, устройство кровли из модульной металлочерепицы
Одноэтажный дом, созданный для комфортного проживания. Этот дом, несмотря на свою простоту в строительстве, предоставляет все необходимое для проживания большой семьи. С общей площадью 140 м2, включающей в себя кухню-столовую площадью 37 м2, три просторные спальни по 14 м2 каждая и два санузла, этот дом предлагает идеальное сочетание функциональности и простора для комфортной жизни.
Дополнительно к жилой площади, у дома есть небольшая терраса площадью 4 м2. Это уютное место, где можно создать зону отдыха и наслаждаться свежим воздухом и природой.
Этот одноэтажный дом – прекрасное решение для семьи, ценящей простоту и функциональность, не жертвуя при этом комфортом жилья.
