СТОИМОСТЬ: по запросу
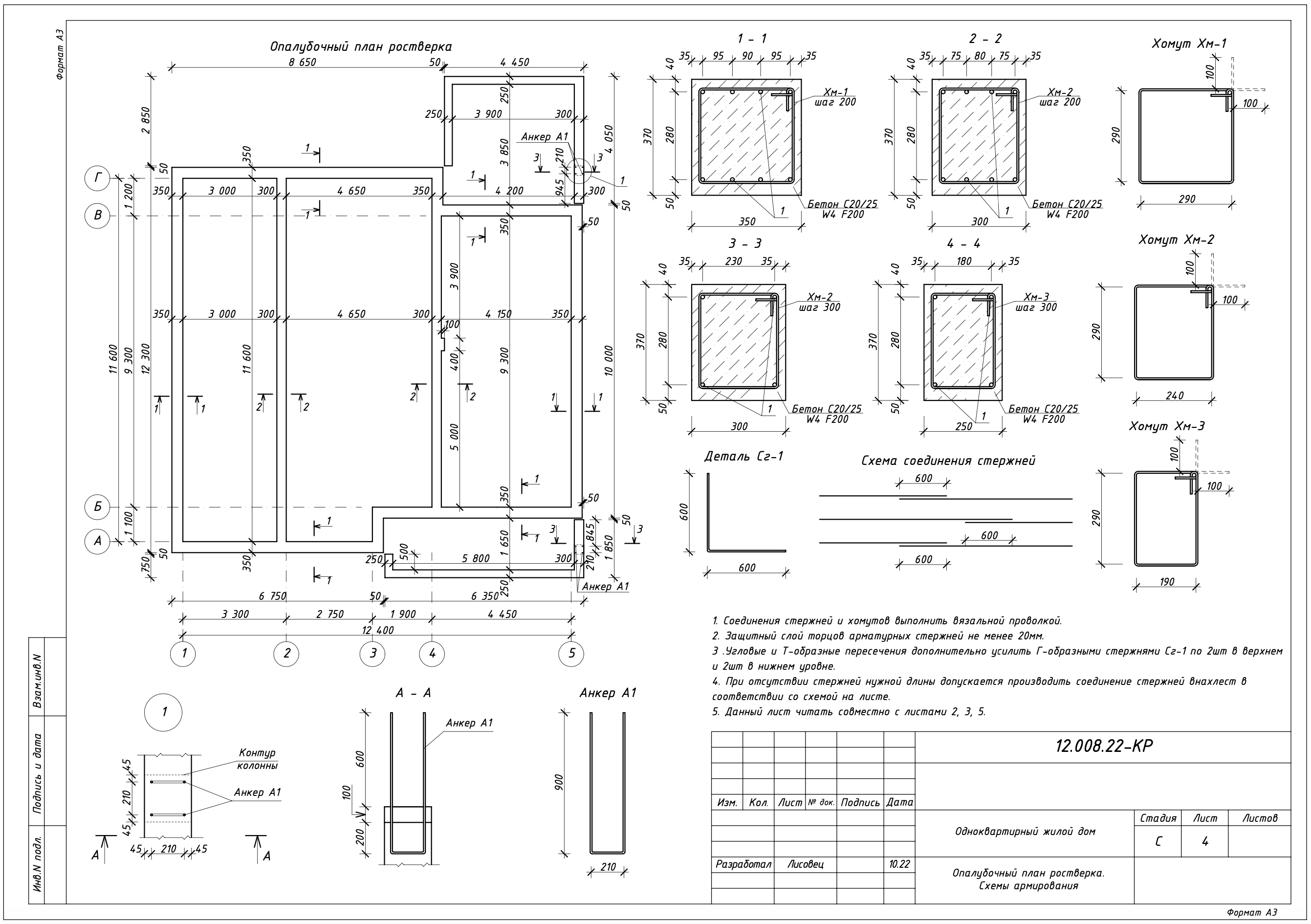
- Схема расположения фундамента: в этом разделе представлена схема, показывающая точное размещение фундамента на участке, с учетом всех необходимых отступов и параметров. Это поможет избежать ошибок при выполнении земляных работ и обеспечивает правильное распределение нагрузок.
- Схема нагрузок на фундамент: в данном разделе указаны предполагаемые нагрузки, которые будут действовать на фундамент, включая вес самого здания, крышу, а также дополнительные нагрузки в виде мебели, техники и прочих предметов. Правильный расчет нагрузок гарантирует стабильность и безопасность конструкции.
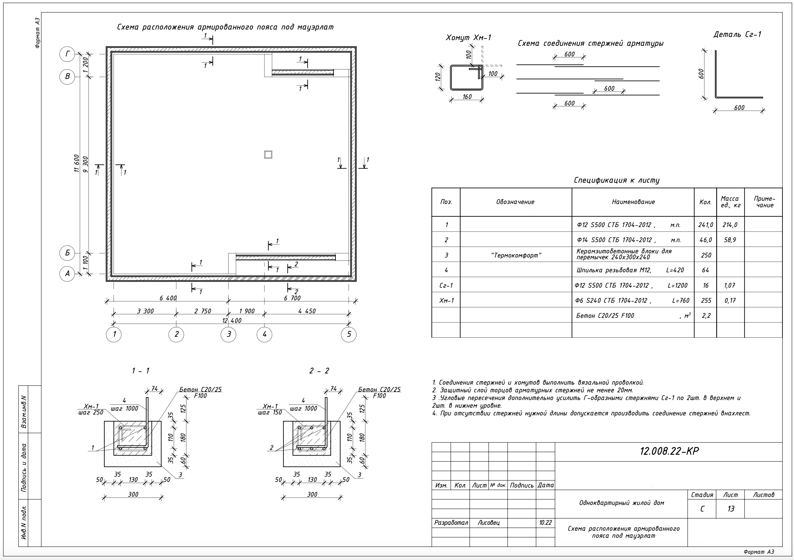
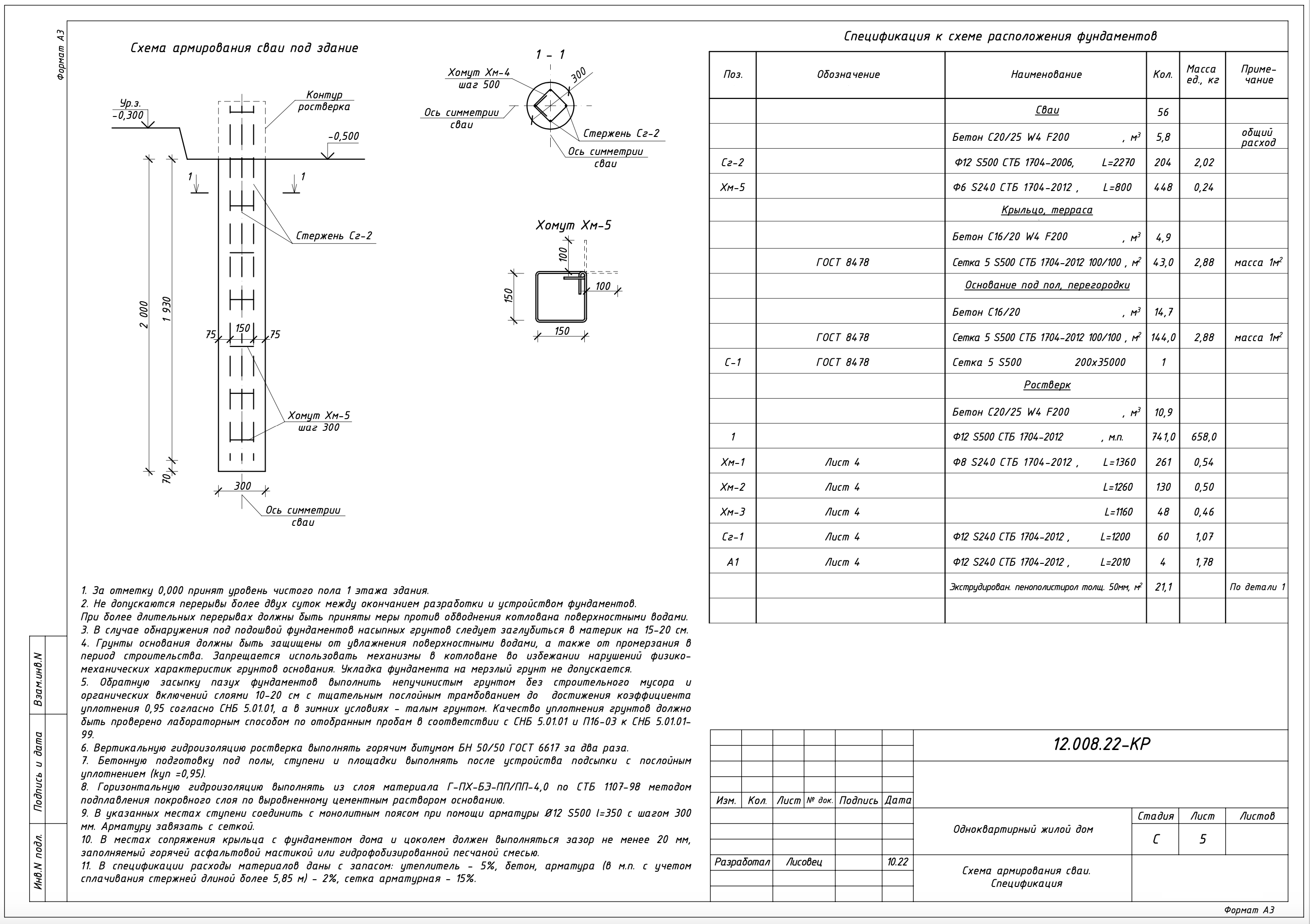
- Соединения стержней и хомутов: все соединения арматурных стержней и хомутов необходимо выполнять с использованием вязальной проволоки. Это обеспечит необходимую прочность и устойчивость армирования фундамента, минимизируя риск разрушения.
- Защитный слой торцов арматурных стержней: для предотвращения коррозии арматуры защитный слой торцов должен составлять не менее 20 мм. Это важно для того, чтобы продлить срок службы фундамента и защитить его от негативного воздействия внешней среды.
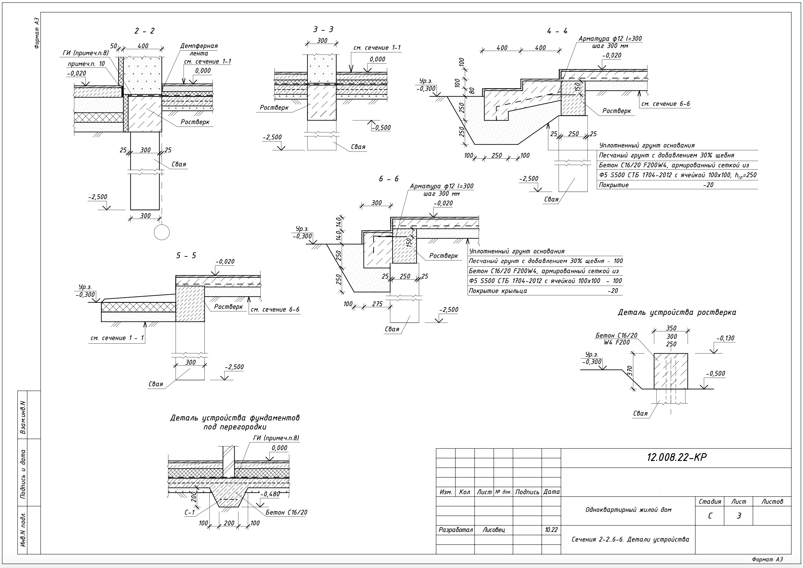
- Покрытие пола: в качестве покрытия пола рекомендуется применение стяжки из цементно-песчаной смеси. Это обеспечит ровную и прочную поверхность, готовую к дальнейшей отделке и эксплуатации.
Соблюдение всех этих требований и рекомендаций на этапе проектирования и строительства фундамента позволит создать надежное основание для одноквартирного жилого дома.
