СТАДИЯ СТРОИТЕЛЬСТВА: черновая коробка дома из керамзитобетонных блоков
СРОКИ СТРОИТЕЛЬСТВА: 7 месяцев
СТОИМОСТЬ: 356 руб. м2 под ключ с материалами
ХАРАКТЕРИСТИКИ
Общая площадь
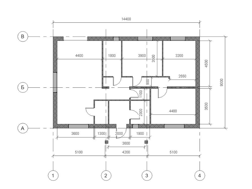
111 м2
Количество этажей
1
Фундамент
свайно-ростверковый
Наружные стены
керамзитобетонный блок
Перекрытия
деревянные балки
Кровля
модульная металлочерепица
ЭТАПЫ РАБОТ: земляные работы, устройство фундамента с утеплением и гидроизоляцией, черновой пол и канализация, заливка крылец из бетона, возведение стен и межкомнатных перегородок с армопоясами, перекрытие первого этажа ж/б плитами с бетонированием колонн, устройство кровли из модульной металлочерепицы, установка окон ПВХ
Представляем вам уютный дом дачного типа, идеально подходящий для круглогодичного проживания. Несмотря на свою компактность – всего 111 м2, он предоставляет все необходимое для комфортной жизни.
Функциональность и Удобство:
Дом включает в себя три уютные спальни, площади которых варьируются от 12 до 16 м2, обеспечивая личное пространство для всей семьи. Просторная кухня площадью 9 м2 и гостиная величиной 25 м2 создают отличное пространство.
Дополнительно, в доме предусмотрена небольшая терраса – идеальное место для отдыха под открытым небом. Крыльцо при входе защищает от непогоды.
Этот дом – прекрасное решение для тех, кто ценит уют и функциональность в небольших пространствах, обеспечивая комфортное проживание круглый год.
