СТАДИЯ СТРОИТЕЛЬСТВА: коробка дома с отделкой фасада из газосиликатных блоков
СРОКИ СТРОИТЕЛЬСТВА: 8 месяцев
СТОИМОСТЬ: 409 руб. м2 под ключ с материалами
ХАРАКТЕРИСТИКИ
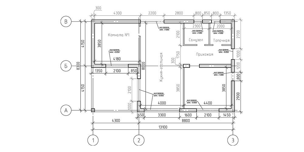
Общая площадь
87 м2
Количество этажей
1
Фундамент
свайно-ростверковый
Наружные стены
газосиликатный блок
Перекрытия
дерево
Кровля
металл
ЭТАПЫ РАБОТ: земляные работы и устройство фундамента, черновой пол и канализация, кладка стен и перегородок с монолитными поясами, заливка крылец, устройство кровли из кровельного профлиста, установка окон ПВХ, утепление и отделка фасада и цоколя
Небольшой дом, который можно адаптировать как для постоянного проживания, так и для сезонного. Строительство подобного дома не потребует от заказчика большого финансирования и непредвиденных расходов благодаря простым и практичным архитектурным решениям. На стадии проектирования, в домах подобного типа легко возможно скорректировать, под потребности заказчика, планировку и отклонения от размеров, что не повлечет за собой большого удорожания стоимости и сроков строительства
