СТАДИЯ СТРОИТЕЛЬСТВА: Проект
СТОИМОСТЬ: 522 руб. за м2
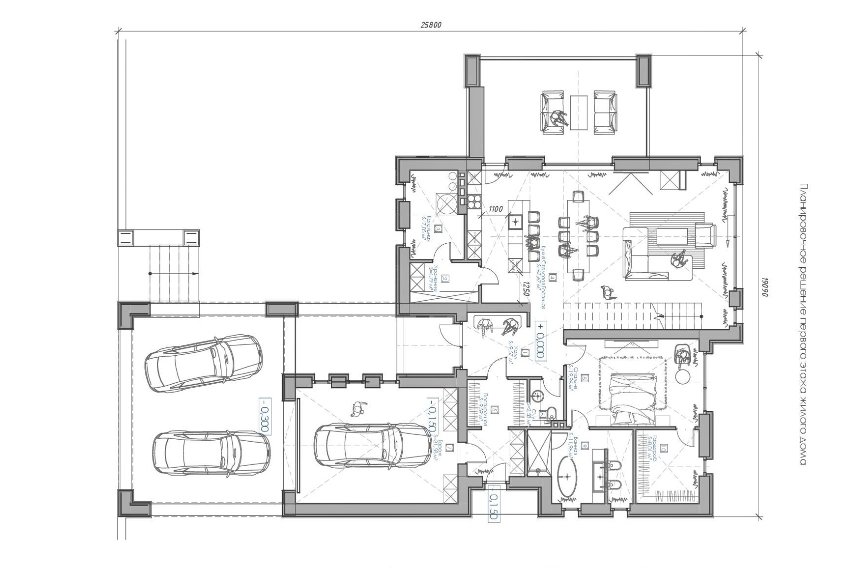
ХАРАКТЕРИСТИКИ
Общая площадь
266 м2
Рекомендуемый размер участка
от 16 соток
Количество этажей
2
Габариты (м)
19,09 × 25,80
Высота (м)
8,7
Материал стен
Керамзитобетонный блок «ТермоКомфорт»
Площадь кровли
515 м2
Материал кровли
Модульная металлочерепица
ЭТАПЫ РАБОТ:
двухэтажный дом, с жилой площадью 266 м2. В дом встроен гараж на одно авто и навес на два авто. Включает в себя просторную гостиную с выходом на крытую террасу и второй свет. Внешний облик дома выполнен в ригельном кирпиче с вставками в виде керамогранита и оштукатуренных поверхностей.
Стоимость возведения коробки дома с материалами «под ключ»
| Состав работ | Работа | Материалы |
| Фундамент | 5064,14 | 5893,87 |
| Обр, засыпка | 1094,12 | 1673,08 |
| Канализация | 300,00 | 300,00 |
| Черновой пол | 3536,72 | 3577,27 |
| Кладка стен | 6958,18 | 9643,89 |
| Лестница | 1140,00 | 1000,00 |
| Плиты перекрытия | 13494,62 | 16542,14 |
| Кровля | 13197,16 | 13771,37 |
| Фасад | 15986,73 | 6943,76 |
| Окна | 2966,75 | 14952,42 |
| Двери | 100,00 | 900,00 |
| Итого | 63838,42 | 75197,80 |
| Всего | 139036,22 | |
| руб. за м2 | 522,69 | |
Состав проекта:
- 3D визуализация.
- Поэтажные планы. Планы этажей с указанием всех площадей помещений.
- Схема фундамента.
- Кладочные планы этажей (с указанием всех размеров).
- Планы перекрытий этажей.
- Фасады дома. Фасады с высотными отметками, габаритными размерами, указанием отделочных материалов.
- Разрезы. Виды дома в разрезе, с указанием высот этажей, толщины перекрытий, высотных отметок, с указанием состава и описания строительных слоев.
