СТАДИЯ СТРОИТЕЛЬСТВА: Проект
СТОИМОСТЬ: 554 руб. за м2
ХАРАКТЕРИСТИКИ
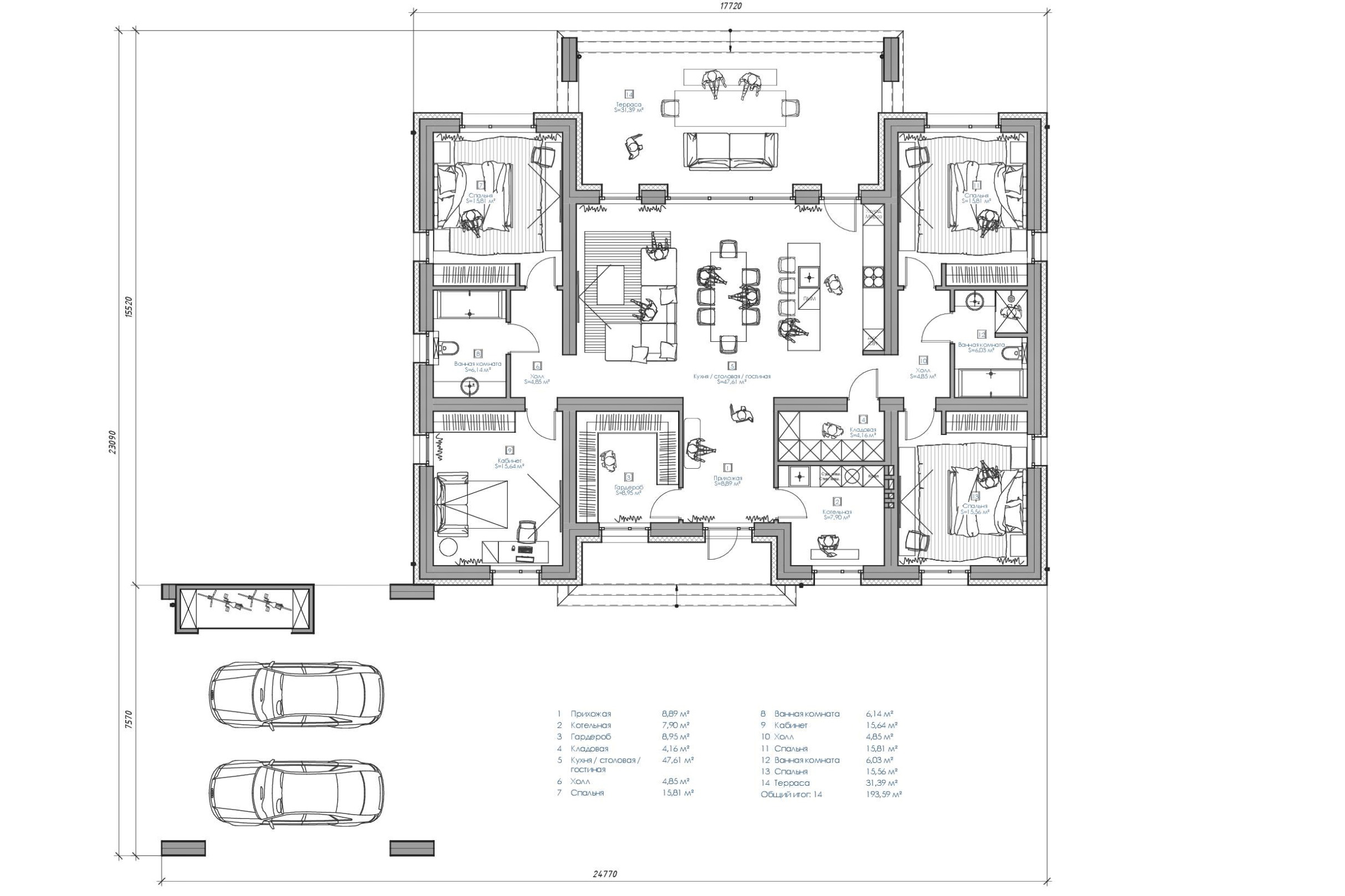
Общая площадь
193 м2
Рекомендуемый размер участка
от 13 соток
Количество этажей
1
Габариты (м)
24,77 × 23,09
Высота (м)
5,55
Материал стен
Керамзитобетонный блок «ТермоКомфорт»
Площадь кровли (м2)
275,14
Материал кровли
Рулонный кровельный материал
ЭТАПЫ РАБОТ: дом, с жилой площадью 193 м2. Включает в себя просторную гостиную с выходом на крытую террасу. К дому пристроен навес на два авто и хоз. блок. Внешний облик дома выполнен в ригельной плитке с применением вставок в виде керамогранита и оштукатуренных поверхностей.
Стоимость возведения коробки дома с материалами «под ключ»
| Состав работ | Работа | Материалы |
| Фундамент | 5823,62 | 5562,50 |
| Обр, засыпка | 2819,66 | 1692,54 |
| Канализация | 523,09 | 414,65 |
| Черновой пол | 3545,16 | 3408,73 |
| Кладка стен | 10547,05 | 9418,47 |
| Плита перекрытия | 7135,91 | 11585,57 |
| Кровля | 7444,83 | 7239,01 |
| Фасад | 15837,21 | 8030,09 |
| Окна | 846,82 | 5080,92 |
| Итого | 54523,35 | 52432,49 |
| Всего | 106955,84 | |
| руб. за м2 | 554,17 | |
Состав проекта:
- 3D визуализация.
- Поэтажные планы. Планы этажей с указанием всех площадей помещений.
- Схема фундамента.
- Кладочные планы этажей (с указанием всех размеров).
- Планы перекрытий этажей.
- Фасады дома. Фасады с высотными отметками, габаритными размерами, указанием отделочных материалов.
- Разрезы. Виды дома в разрезе, с указанием высот этажей, толщины перекрытий, высотных отметок, с указанием состава и описания строительных слоев.
- План-схема кровли. Вид на кровлю сверху с указанием углов наклона скатов.
