СТАДИЯ СТРОИТЕЛЬСТВА: Проект
СТОИМОСТЬ: 540 руб. за м2
ХАРАКТЕРИСТИКИ
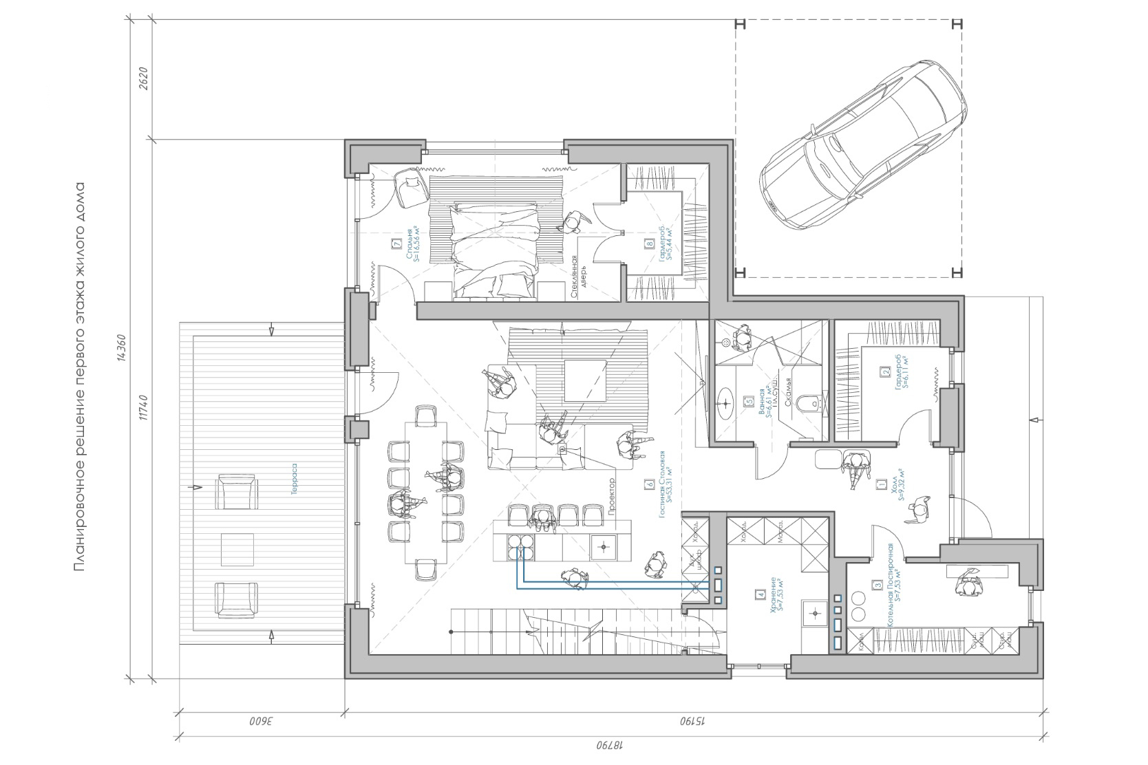
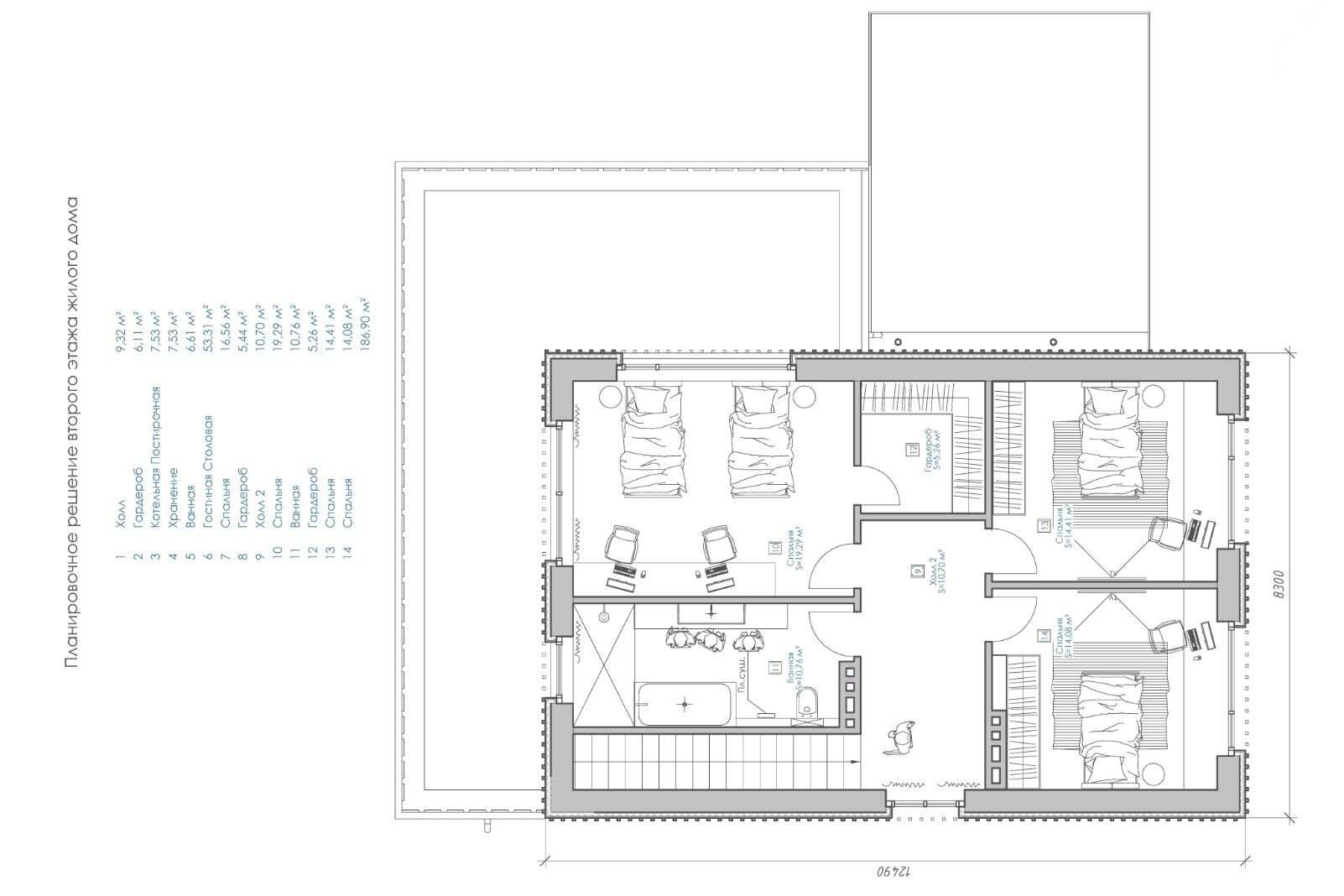
Общая площадь
186 м2
Рекомендуемый размер участка
от 13 соток
Количество этажей
2
Габариты (м)
14,36 х 18,79
Высота (м)
7,6
Материал стен
Керамзитобетонный блок «ТермоКомфорт»
Площадь кровли (м2)
151
Материал кровли
Рулонный кровельный материал
ЭТАПЫ РАБОТ: дом, жилой площадью 186 м2, состоит из двух этажей с плоской крышей и легким металлическим навесом. На втором этаже находятся три спальни, а также открытая терраса. Внешний вид здания выполнен в стиле, объединяющем кирпичную кладку с объемными элементами и реечной системой из древесины.
Стоимость возведения коробки дома с материалами «под ключ»
| Состав работ | Работа | Материалы |
| Фундамент | 4441,93 | 4481,20 |
| Обр, засыпка | 1907,07 | 1251,57 |
| Канализация | 523,09 | 414,65 |
| Черновой пол | 2401,64 | 2557,18 |
| Кладка стен | 8079,72 | 9271,44 |
| Плита перекрытия | 7171,71 | 11143,41 |
| Кровля | 6925,81 | 6817,32 |
| Фасад | 14812,51 | 8004,93 |
| Окна | 1475,20 | 8851,20 |
| Итого | 47738,67 | 52792,91 |
| Всего | 100531,58 | |
| руб. за м2 | 540,49 | |
Состав проекта:
- 3D визуализация.
- Поэтажные планы. Планы этажей с указанием всех площадей помещений.
- Схема фундамента.
- Кладочные планы этажей (с указанием всех размеров).
- Планы перекрытий этажей.
- Фасады дома. Фасады с высотными отметками, габаритными размерами, указанием отделочных материалов.
- Разрезы. Виды дома в разрезе, с указанием высот этажей, толщины перекрытий, высотных отметок, с указанием состава и описания строительных слоев.
- План-схема кровли. Вид на кровлю сверху с указанием углов наклона скатов.
