Наша компания занимается проектированием и строительством заборов «под ключ». Мы являемся производителем различных изделий из бетона и металла. Если вам необходима консультация, замер или расчет забора, то нажмите кнопку «рассчитать» и наши сотрудники с вами свяжутся.
Типовые рекомендации:
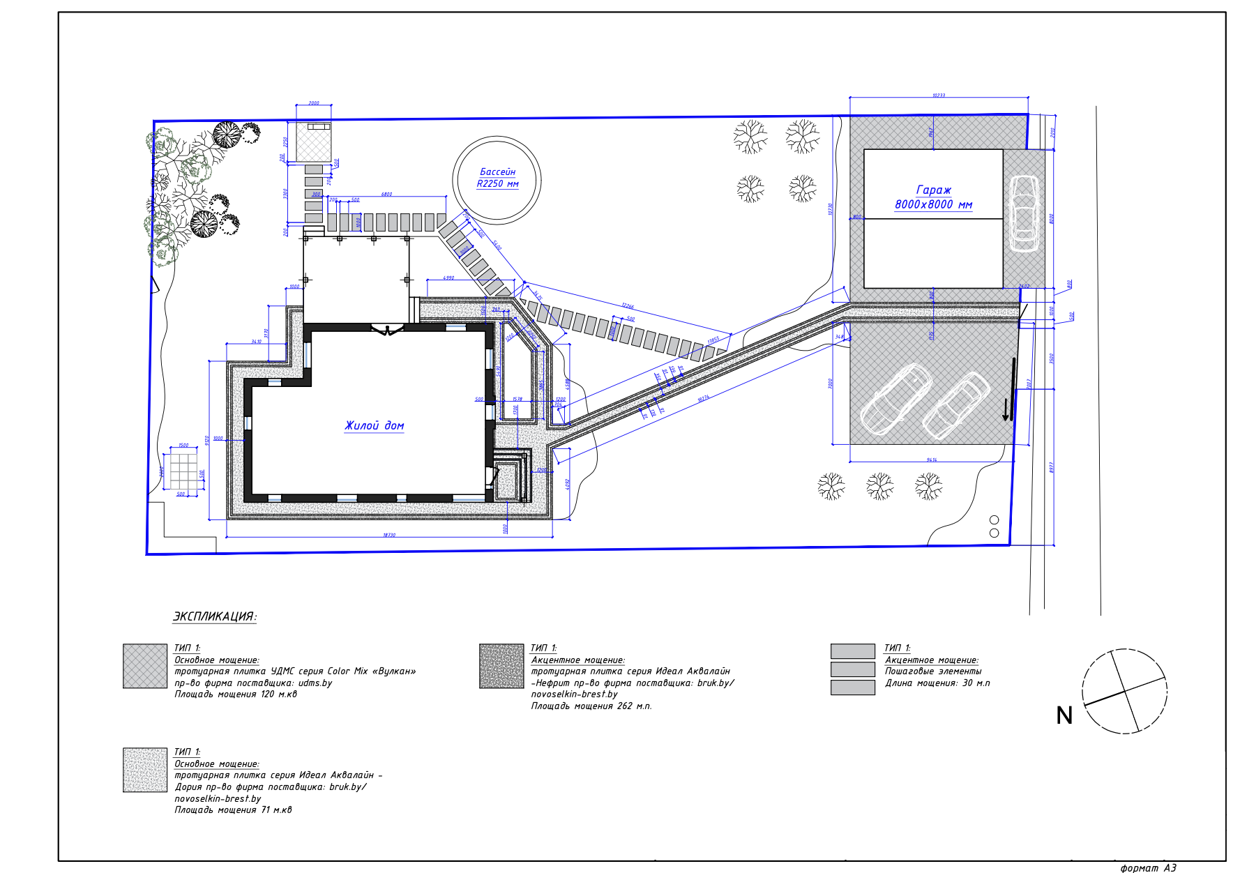
- Площадь мощения указана без учета подрезки и кратности поддонам.
- Перед началом мощения произвести разметку участка.
- Произвести выемку грунта на отметку — 0,4 м от проектируемого уровня мощения.
- Подушка основания: ПГС- 300 мм.
- При устройстве основания под парковку выполнить выемку грунта на отметку 0,5 м.
- Предусмотреть гравийную подушку, слои разделить геотекстилем.
- При подготовке основания для мощения рекомендуется использовать геотекстиль для разделения слоев и уменьшения сезонного пучения земли.
- Перед началом работ произвести разметку участка с корректировкой точек привязки относительно рельефа местности.
- Выполнить монолитные основания для накладных светильников.
- В качестве опалубки использовать пластиковую трубу диаметром не более 100 мм.
- Высота поверхности монолитно основания должна быть на 30 мм ниже уровня плитки на всех точках.
- Рекомендуется использовать светодиодные лампы (LED) вместо традиционных источников освещения.
- Все розетки и выключатели должны соответствовать классу защиты IP65 (полная защита от проникновения пыли, защита от струй воды со всех направлений).
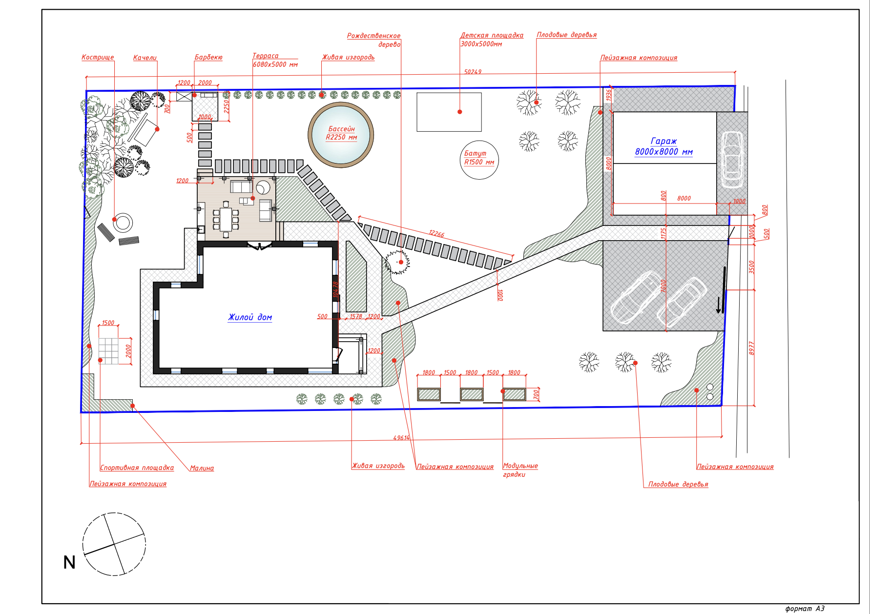
В проекте предусмотрена закладка плодового сада. Оптимальное время посадки растений — ранняя весна, когда растения находятся в состоянии пониженной активности физиологических процессов растительного организма.
Посадочные ямы для закладки сада необходимо подготовить осенью, заполнив их плодородным грунтом перемешанным с компостом на основе конского навоза. Ямы и траншеи, в которые будут высаживаться растения с комом, должны быть засыпаны этим субстратом до низа кома. Высота установки саженцев в яму или траншею должна обеспечивать положение места подвоя выше уровня поверхности земли на 3-4 см после осадки грунта.
Для лучшего развития корневой системы обязательна обрезка после закладки сада. Саженцы обязательно нужно подвязывать к поддерживающим кольям, чтобы они могли выдержать давление ветра и воздействие погоды.
Корсетные посадки
Типовые рекомендации:
- Рекомендуется выполнить закладку основного посадочного материала (деревья) фоновой композиции после окончания периода вегетации.
- Закладка хвойных насаждений только в подготовленный грунт. Если посадочный материал хвойных растений будет переноситься из леса, то заложить дополнительные саженцы с учетом низкой приживаемости.
- Не допускается производить посадки растений с открытой корневой системой до конца вегетации!(еще не опала листва).
- Закладка плодового сада выполнить весной. Подготовку посадочных ям осуществляется осенью.
