СТОИМОСТЬ:
Стоимость работ по устройству монолитной фундаментной плиты
| Наименование работ | Ед. измерения | Кол-во | Цена за Ед. руб |
Стоимость руб. |
| Стоимость работ (без учета материалов) | ||||
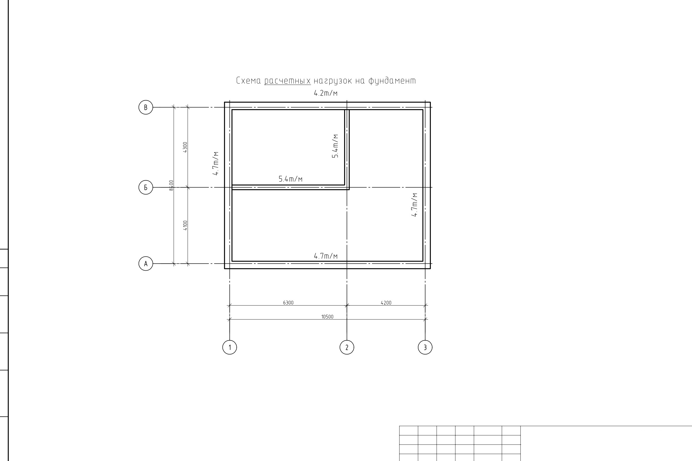
| Общая длина фундамента | м2 | 98.90 | ||
| Разметка и разбивка осей |
выезд | 1,00 | 360.00 | 360.00 |
| Работа с координацией техники (проверка отметок) |
чел.час | 8,00 | 36.00 | 288.00 |
| Устройство подсыпки из ПГС толщиной 500 мм. с уплотнением |
м2 | 285.8 | 7.20 | 2057.72 |
| Устройство гидроизоляции из пленки | м2 | 98.9 | 3.60 | 356.03 |
| Раскладка труб канализационных | м.п. | 37.0 | 14.40 | 532.80 |
| Монтаж отводов, тройников, заглушек | шт. | 32.0 | 5.40 | 172.80 |
| Установка гильз под коммуникации | шт. | 10 | 36.0 | 360.0 |
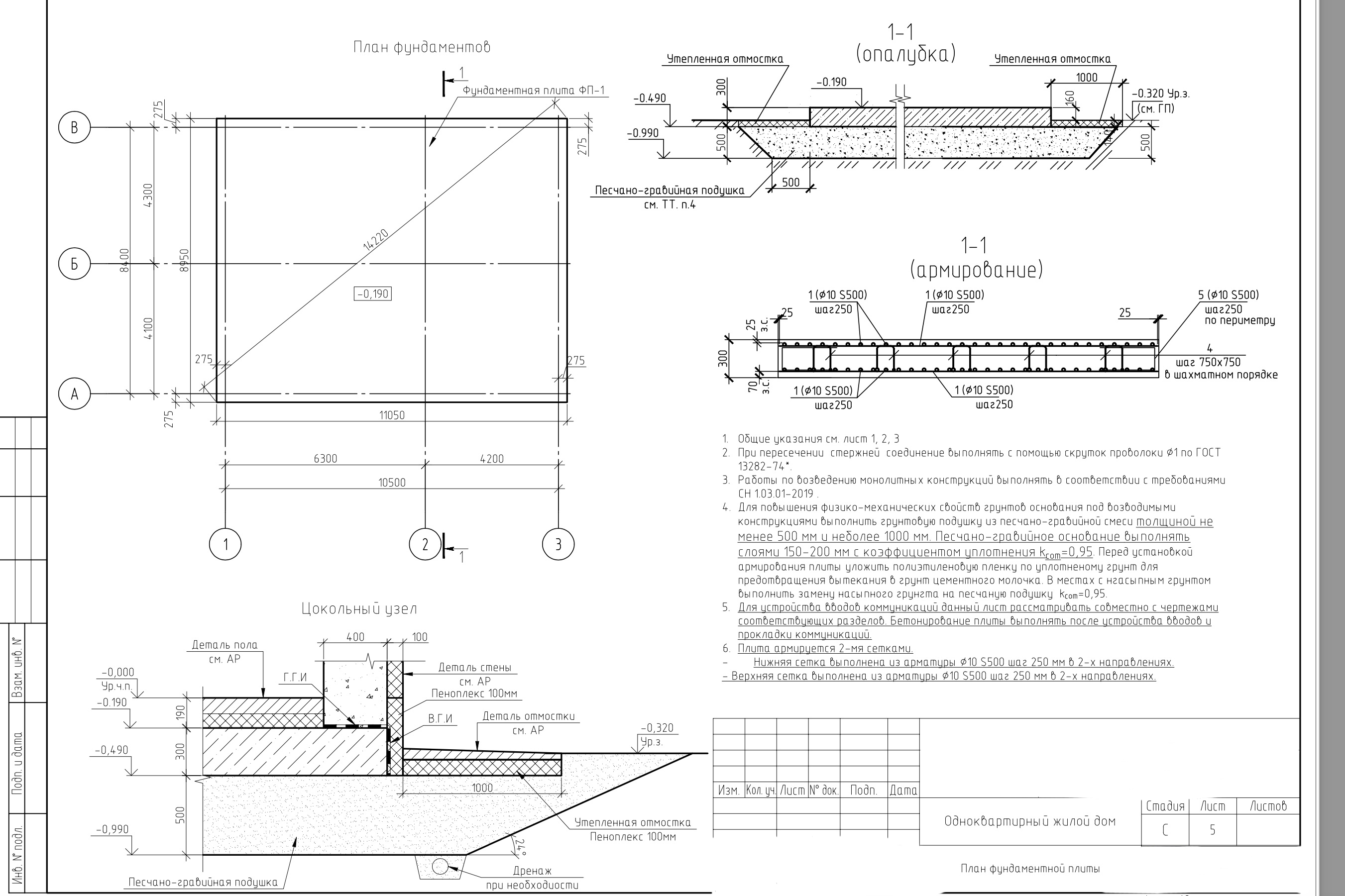
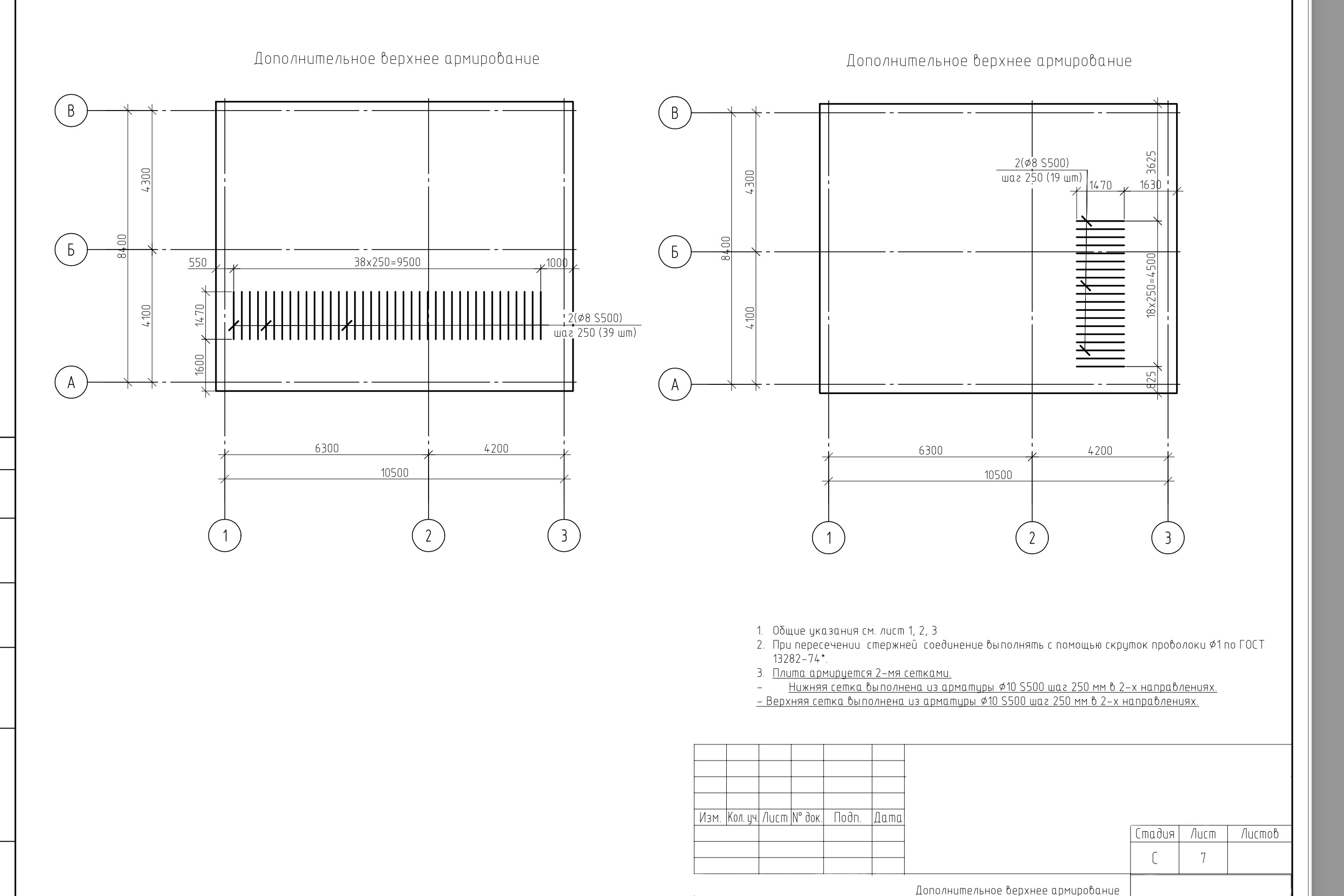
| Вязка арматурного каркаса плиты ячейкой 250х250 две сетки (резка арматуры в размер, гибка арматуры, сборка арматуры в каркас при помощи оцинкованной проволки) |
м2 | 195.82 | 18.00 | 3524.71 |
| Установка опалубки (компоновка щитов, обработка щитов маслом, скручивание щитов между собой метизными элементами, заделка отверстий пеной, установка и раскрепление в проектном положении, пробивка отметок по высоте, установка гильз) |
м2 | 24.00 | 28.80 | 691.20 |
| Бетонирование фундамента 300 мм (распределение бетона по отметкам, вибрирование бетона, сглаживание верхней поверхности в проектную отметку) |
м2 | 98.90 | 18.00 | 1780.16 |
| Демонтаж опалубки (раскрутка болтов и шпилек, чистка и складирование опалубки) |
м3 | 24.00 | 7.20 | 172.80 |
| Всего: | 10 296.22 | |||
| Скидка 3% | 308.89 | |||
| Итого: | 9 987.33 |
Материалы и механизмы необходимые для работ
| Материалы и механизмы | Ед. измерения | Кол-во | Цена за Ед. руб |
Стоимость руб. |
| Экскаватор — погрузчик (для разработки грунта без вывоза) | маш.ч | 8.00 | 100.00 | 800.00 |
| ПГС 20т | маш. | 5,00 | 340.00 | 1700.00 |
| Труба диаметром 110 мм | м.п. | 16.00 | 14.00 | 224.00 |
| Труба диаметром 50 мм | м.п. | 21.00 | 6.50 | 136.50 |
| Отводы, тройники, заглушки | шт. | 32.00 | 3.50 | 112,00 |
| Гидроизоляционная пленка | м2 | 113.73 | 1.80 | 204.72 |
| Бетон С20/25 на щебне | м3 | 30.56 | 168.00 | 5133.97 |
| Доставка бетономиксером ( примерно, зависит от расстояний) | рейс | 4 | 210.00 | 840.00 |
| Доставка бетономиксером — насос (при необходимости) | маш./час | 4 | 210.00 | 840.00 |
| Арматура 10 | м.п. | 1911 | 1,65 | 3153.45 |
| Арматура 8 | м.п. | 448 | 1,10 | 493.2 |
| Доска для разметки и раскрепления опалубки | м3 | 0,20 | 450.00 | 90.00 |
| Доставка материала | рейс | 2,00 | 150.00 | 300.00 |
| Расходные материалы (вязальная проволок, круги отрезные, электроды, саморезы, гвозди, сверла, гофры ПВХ, углы и тройники для канализации, смазка для опалубки) |
561.11 | |||
| Транспортные затраты на доставку рабочих | 300,00 | |||
| Доставка опалубки | рейс | 1.00 | 159.00 | 159.00 |
| Итого материалы: | 15 047.94 |
